九游会j9,九游会j9官网,九游会j9平台,九游会j9官方网站

Cn
News

NEWS

【DESIGN】杉杉德信·江湾城示范区实景美学赏鉴

Release Date:2021.11.17

Author:Dexin Group

 

 

 

千年传承,滋养了常山的文化与气韵,厚重历史的积淀,随着常山江水绵延曲长。“山水相融,城在园中”,水脉之上,杉杉德信·江湾城孕育而生,在人文与自然间,构建趋于时代脉搏之上的人居空间。

 

以城市肌理为设计原点,将自然意象隐藏在空间秩序内,运用克制而轻柔的手法,勾勒出一个流动的生活场域。


01


MEMORY

山石有忆

-

空间建立的想象

在自然之上 于细末之间

 

入口以弧形围合

虚化了人与空间的情感界限

前厅在不同构成的块面间

形成利落简明的格局


大理石交织的纹理和清雅的底色

诠释了自然元素

在特定秩序下形成的感官体验 

 

-

 

 

前台一侧仿铜不锈钢错落排列的格栅

在引入自然光源的同时

也带来了更多绰影的想象

 

角落一隅被半包裹的金属雕塑

如风随影

用山石的形态定格了流动的记忆

灵动且深远

 

 

 

02


TOTALLY NATURAL

水若天成

-

点线和面构成的空间

永不落俗套

沙盘区漫射的光影

来自如银河星光排布组合的灯具阵列

 

在半空勾划出和谐优美的弧线

顶面不锈钢和地面大理石

共同营造的视觉场域

 

移步异景间

反射出动态的水光留影 江水粼粼

在彼此的对话中产生交互的美学引力 

 

-

 

 

 

03


 

OVERLAP THE SYMBIOTIC

交叠共生

-

山水之间

共生出人与自然的彼此对谈

 

洽谈区与沙盘区

以悬空几何块面为分界

上半部分沿用了金属格栅

各区间断而不离

 

商谈区域中轴对称

分类而置从家具的配置和

陈设的细节上形成区隔

 

整体延续暖灰色调

点缀的绿色从装饰到家居相呼应


-


 

 

 

 

两侧利用大面积落地玻璃

引入自然光线

开阔的视野使感知更为轻缓松弛

 

同时利用通透的展示柜

增强了空间节奏

 

-

 

 

 

 

深色木制吊顶形成的视觉反差

使水吧台融于致雅的气氛中

让整体更加赋有质感

 

三面仿铜不锈钢

在虚实间反映了空间的存在关系

趋于复古 显露时尚

 

砖石肌理的墙面

为厚重的历史记忆印刻形态

着力而不宣张

 

-

 


 

 

城市的记忆

自然的形态

 

杉杉德信·江湾城

在厚重的历史中撷取滋养

将人文意识化作设计语言

共生出婉娈轻灵的生活质地

 

-

 

 

  04


 

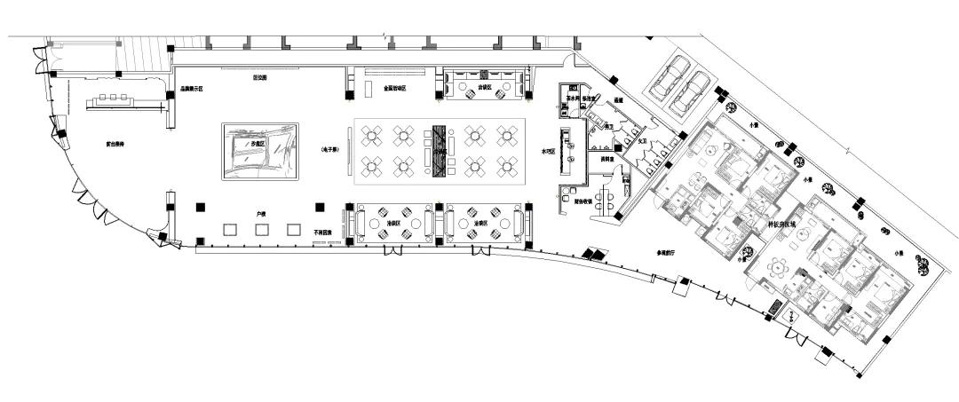
ANALYSIS DIAGRAM

分析图

 -

 

 

平面图 

 

INFO

 

- 项目名称 -杉杉德信 · 江湾城 

- 业主单位 -

德信产商文集团

 

- 设计机构 -GFD广飞设计

 

- 设计总监 -

叶飞


- 设计团队 -

郭艳 沈伟

 

- 软装单位 -

千渡家居

 

- 软装团队 -

蔡杨阳  姜周  路欣依

 

- 室内面积 -1075㎡
- 项目摄影-顽伴摄影
-

Return
0571-85831088
九游会j9